Luxurious 3-Bedroom Penthouse with Private Roof Garden in Limassol, Agios Athanasios
Ref: 5081 /
Description
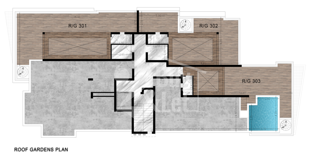
The private roof garden is a retreat with a jacuzzi, BBQ area, and WC, accessible via elevator or private stairs. Additional highlights include en-suite bedrooms, smart home automation, electric shutters, and secure storage facilities.
