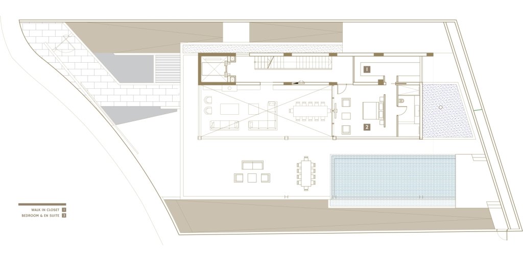
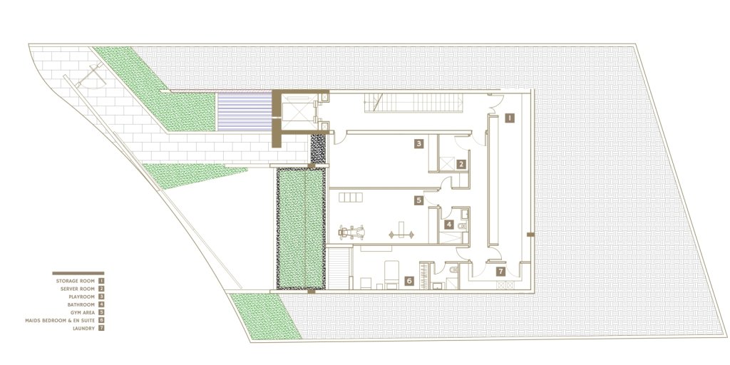
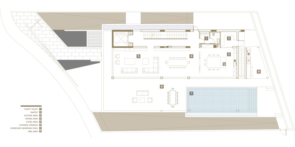
Premium 5- Bedroom Villa on the Hill with Sea & Mountain Vistas in Limassol, Germasogeia
Ref: 7758 /
Description
*Delivery takes 1 year and 8 months from start to finish. Construction will begin as soon as we sign the contract with a client. The project already has a license.
