Resale

Prime Commercial Building for Sale – Town Center, Limassol in Limassol, Historical Center

3,500€+VAT per month

Ref: 8274 /

Floor No.: 3 / Internal Area: -

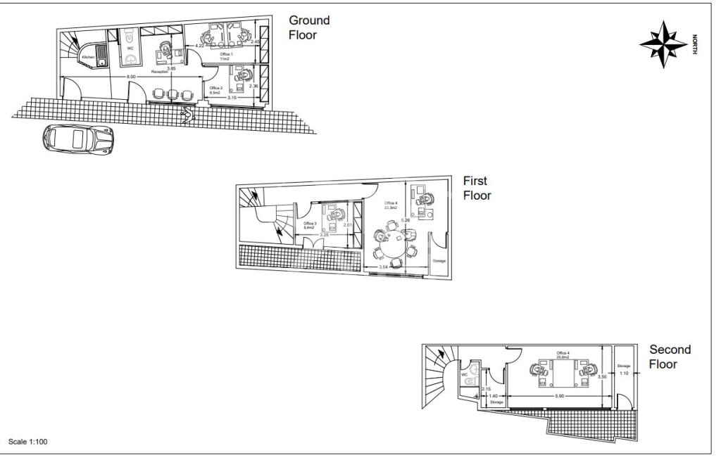
Description

A rare opportunity to own a premium small commercial building in the heart of Limassol, just a minute from the sea. This modern property offers an excellent location with easy access to key business and commercial hubs. Featuring high-end finishes and a functional layout, it is ideal for offices, retail, or investment purposes. Ready to move in, this building provides a prestigious business presence in one of the most sought-after areas. Don’t miss out on this exceptional opportunity!

Features

Details

Office Type: Entire Building Office
Construction Stage: Resale
Floor No.: 3
Furnished: Fully Furnished
Office Layout: Partitioned
Floor Type: Tiles
Construction Type: Concrete

Areas

Uncovered Verandas: 10m²
Covered Area: 175m²

Main Features

Secure Door:
Air Condition:
Concierge Reception:
Reception:
Kitchenette:
Conference:
Rental Type: Long-Term
Solar Panels:
Title Deed: Yes
Window Type: Double Glazing
Mortgage Calculator
Amount Financed:
Mortgage Payments:
Annual cost of Loan:

Book a Viewing